Montag – Freitag: 7:00 – 17:00
+49 351 42 65 43 33

Haus 3 zur Miete

Wohnfläche ca. 148 m², Grundstück ca. 626 m²

Doppelhaushälfte Am Klostergut

Moderne Neubauqualität mit hoher Energieeffizienz – Bezugsfertig ab 01. August 2026

In ruhiger und attraktiver Lage entsteht diese hochwertige Doppelhaushälfte mit einer Wohnfläche von ca. 148 m² (mit Terrasse – Ansatz 50%) und 131m² ohne Terrasse. Das moderne Zuhause überzeugt durch eine durchdachte Grundrissgestaltung, energieeffiziente Bauweise sowie eine gehobene Ausstattung – ideal für Familien oder Paare mit Anspruch an Komfort und Nachhaltigkeit.

Wohnen/Essen ca. 35,19 m²
Kochen ca. 8,87 m²
Flur ca. 6,00 m² (Treppenraum 50% eingerechnet)
Diele ca. 4,38 m²
WC ca. 3,85 m²
HWR ca. 4,11 m²
Terrasse ca. 35,52 m²

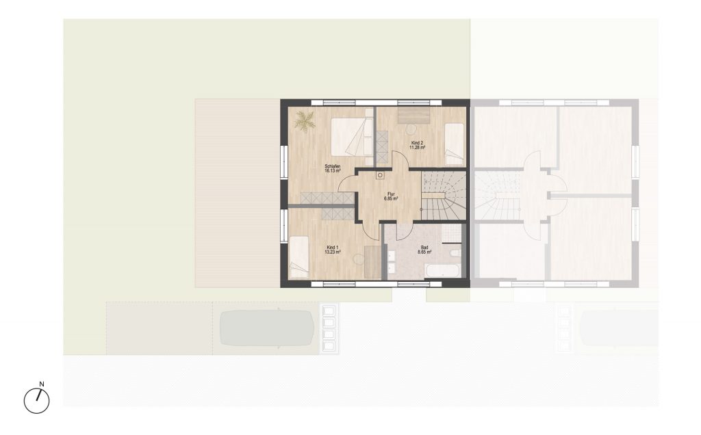
Schlafen ca. 16,13 m²
Kinderzimmer 1 ca. 13,23 m²
Kinderzimmer 2 ca. 11,28 m²
Bad ca. 8,65 m²
Flur ca. 6,85 m²
Spitzboden ca. 12,46 m²

Erfahren Sie hier mehr zum Lageplan:

Highlights auf einen Blick

  • Wohnfläche: ca. 148 m² (mit Terrasse – Ansatz 50%)

  • Grundstücksgröße: ca. 626 m²

  • 2 Stellplätze direkt am Haus

  • Bezugsfertig ab 01.08.2026

  • Hochwertige Einbauküche inklusive

  • Kaminofen für behagliche Wohnatmosphäre

  • Energiestandard: KfW 55 EE

  • Heizung: moderne Luftwärmepumpe

Ausstattung & Komfort

Die Doppelhaushälfte wird mit einer modernen Einbauküche ausgestattet und bietet dank Kaminofen eine besonders gemütliche Wohnatmosphäre. Große Fensterflächen sorgen für helle, freundliche Räume. Die energieeffiziente Bauweise nach KfW 55 EE Standard sowie die Luftwärmepumpe gewährleisten niedrige Betriebskosten und nachhaltiges Wohnen.

Die Immobilie wird mit einer Mindestmietdauer von vier Jahren vermietet. Es handelt sich um einen Indexmietvertrag, eine Staffelmiete ist nicht vorgesehen.